Eschenbach
Eschenbach

Eschenbach

1,195 utilisateurs actifs dans la région

Plus de contenu est disponible pour les membres de Crossiety Inscris-toi maintenant!
Image de collage 1

Pächter für unser schönes Vereinsheim gesucht

Wir suchen für unsere Vereinsgaststätte einen neuen Pächter – egal ob Deutsche Küche, Italienisch, Griechisch oÄ: wir freuen uns über jede Zuschrift und sind gespannt auf Ihre Konzepte!
Es erwartet Si... 
Lire la suite ➞

Image de collage 1

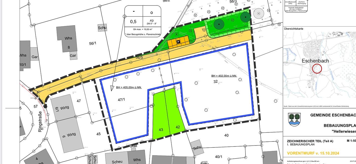
Gemeinderatssitzung: Hellerwiesen-Hände weg!

Adresse

Feuerwehrhaus Eschenbach

In der Gemeinderratssitzung am Dienstag steht der Bebauungsplan Vorentwurf zu den Hellerwiesen auf der Tagesordnung. Alle sind eingeladen, zu demonstrieren, die gegen die Bebauung und Erschließung von... Lire la suite ➞

Image de collage 1

Bundesmusiktreffen 60+ in Bruchsal

Vom 6. bis 8. September 24 nahm die Akkordeongruppe Eschenbach am Bundesmusiktreffen teil. Es war für die Spielerinnen und Spieler ein ereignisreiches Wochenende.
Gleich am Freitag, nach Ankunft in B... 
Lire la suite ➞

[#<Card::Document id: 12226>]
Image de collage 1

Fundsachen

Folgende Kleidungsstücke sind bei uns abgegeben worden (siehe Bild) .
Abzuholen auf dem Rathaus.

Senioren Sprechstunde und Pflegeberatung

Adresse

Rathaus Eschenbach

Haben Sie Fragen und Anliegen rund um das Thema Wohnen im Alter zu Hause - zum Thema Pflege und Entlastung? Ich freue mich auf Ihren Besuch bei mir als Pflegeberaterin im Rathaus.