Mehr Beiträge sind für Crossiety-Mitglieder sichtbar Jetzt Mitglied werden!
Collagebild 1

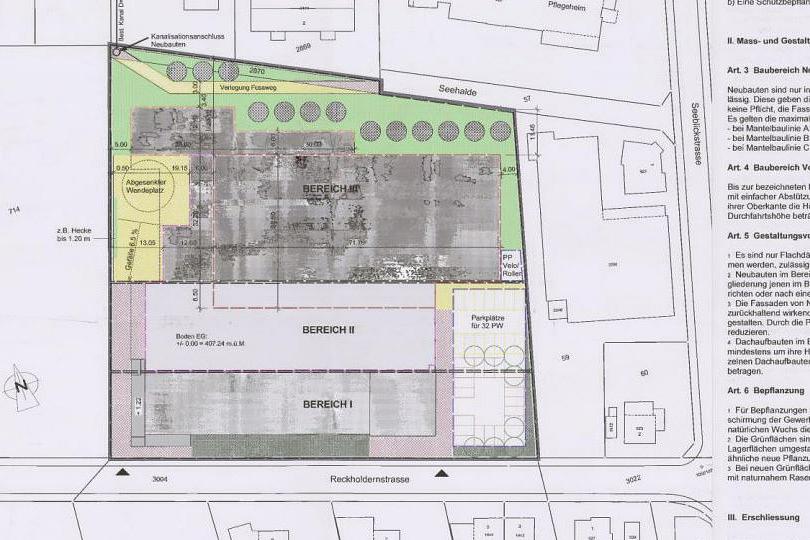
Mitwirkung zu Änderungen an Sondernutzungsplänen

Die Stadt Romanshorn passt ihre Sondernutzungspläne an die gesetzlichen Vorgaben an und führt dazu vom 10. Januar bis 7. Februar 2025 eine öffentliche Mitwirkung durch. Zum vollständigen Weiterlesen ➞
Collagebild 1

Frohe Festtage

Die Stadt Romanshorn wünscht allen Einwohnerinnen und Einwohnern frohe Weihnachten, erholsame Feiertage und einen guten Start in das neue Jahr 2025. Zum vollständigen Artikel
Collagebild 1

Besser informiert mit den neuen Infotafeln

Zwei neue LED-Infotafeln an den Ortseingängen von Romanshorn informieren ab 2025 über News und Veranstaltungen der Hafenstadt. Ende Januar gehen sie regulär in Betrieb. Zum vollständigen Weiterlesen ➞
Collagebild 1

Neujahrsapéro am 6. Januar 2025

Die Stadt Romanshorn lädt am 6. Januar 2025 zusammen mit den Körperschaften die Bevölkerung herzlich zum Neujahrsapéro um 18.00 Uhr ins evangelische Kirchgemeindehaus an der Bahnhofstrasse 44 ein. Weiterlesen ➞

Einsprachebehandlung Bahnhofplatz abgeschlossen

Der Stadtrat hat die im Rahmen der Baugesuchauflage zur Neugestaltung und Neuorganisation des Bahnhofplatzes eingegangenen Einsprachen geprüft und darüber entschieden. Zum vollständigen A Weiterlesen ➞