Collagebild 1

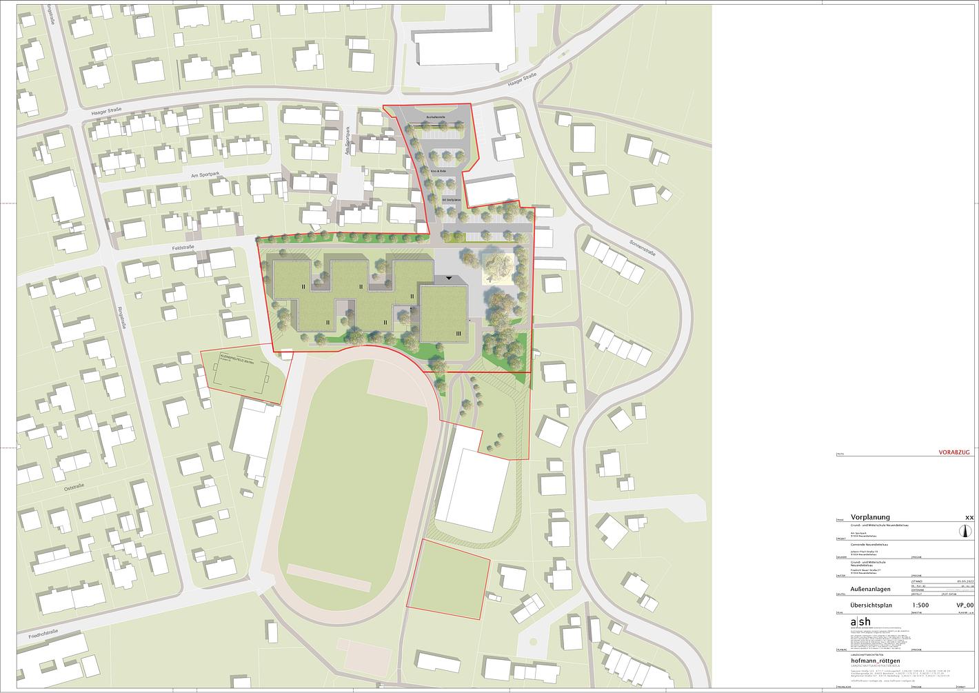
Grünflächen Sportpark sowie Skaterplatz

Durch den Bau der Schule am Sportpark soll laut verschiedener Aussagen der Skaterplatz, der Bolzplatz, der Spielplatz und wertvolles Grün verloren gehen. Die derzeitigen Planungen sehen zu diesen Punkten folgendes vor:

Der Skaterplatz war nie Teil der Planungen und bleibt nach derzeitigem Kenntnisstand unverändert erhalten. Die entfernte BMX-Strecke soll nach den derzeit laufenden Arbeiten der Gemeindewerke wieder aufgebaut werden (letzteres zur allgemeinen Information).

Als Ersatz für den entfallenden Bolzplatz ist geplant ein Kleinspielfeld neben der Einfachhalle aufzubauen. Dies ist dann unabhängig vom Schulbetrieb ganzjährig nutzbar bzw. bespielbar.

Teile des Spielplatzes liegen außerhalb der beplanten Flächen und sind vom Schulneubau nicht betroffen. Nach Möglichkeit soll im Zuge des Schulneubaus der Spielplatz an Ort und Stelle aufgewertet und gleichzeitig auch der Schule für eine Nutzung zur Verfügung stehen. Ob, bzw. in welchem Umfang dies umsetzbar ist, kann aufgrund des sehr frühen Planungsstadiums derzeit noch nicht abschließend gesagt werden.

Am Standort ist für die Bauleitplanung und zur Abstimmung mit der unteren Naturschutzbehörde ein artenschutzrechtliches Gutachten durchzuführen. In diesem Gutachten werden alle Grünflächen bewertet und entschieden, wie mit ihnen umzugehen ist. Seitens der Verwaltung wird derzeit davon ausgegangen, dass die Gehölze im Bereich des Spielplatzes in jedem Fall erhalten bleiben. Mit hoher Wahrscheinlichkeit kann auch die Baumreihe an der südlichen Grenze des Sportparks erhalten bleiben.

Am Bestandsgrundstück wird sowohl im Falle eines kompletten Neubaus als auch bei einer Sanierung der Grundschule und dem Neubau der Mittelschule der dortige Baumbestand entfernt werden müssen.

Der im Zuge der Baumaßnahme entstehende Schaden an der Natur ist auszugleichen.

Im Zuge einer Baumaßnahme am Sportpark ist in der aktuellen Planung angestrebt, einen Teil des notwendigen Ausgleichs durch die Anlage artenreicher Gehölze am Standort zu erbringen. Dadurch soll erreicht werden, dass die bereits vorhandenen Gehölzstrukturen zwischen Sonnenstraße und Dreifachturnhalle verlängert werden und die Durchgängigkeit für Insekten und Kleinsäuger in den örtlichen Grünflächen verbessert wird.

Die als Bild dargestellten Freiflächenplanungen spiegeln den aktuellen Planungsstand in der Leistungsphase 2 wieder. Der Plan dient nur zur Veranschaulichung der Grundstückseinteilung und dem aktuellen Planungsstand, kann aber noch keine Grundlage zur Diskussion für einzelne Gehölze oder Ausführungsarten in der Freifläche sein.

Dieser Beitrag wurde in der Gruppe Bau der Grund- und Mittelschule veröffentlicht.